398 000 €
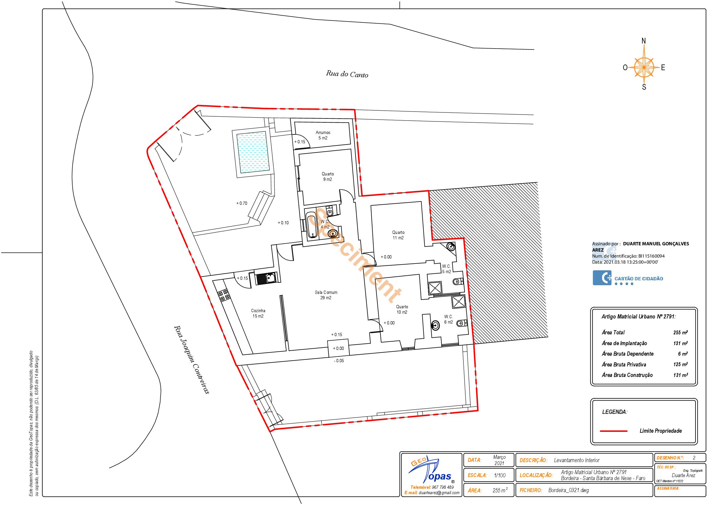
Surface habitable : 131m²
Surface totale : 215m²
Chambres: 3 suites
2 terrasses
Jacuzzi
Orientation Sud/Ouest
Aéroport : Aéroport international de Faro, 16 kms
16 kms de la mer
Grand espace commercial 10 kms: Ikea, Leroy merlin , Zara etc ...
Tous services á 2 kms: Medical, adminstratif, sport, école, commerces, superettes ...
Relevé topographique
Plan intérieur
Contactez-nous
Agence immobilière s'abstenir
